Menu
<< Back to Search

2018 PARKSIDE Oshkosh, WI 54901

$250,000
2 Units  |  1,752 Square Feet  |  Duplex   |   MLS # 50317080

Description

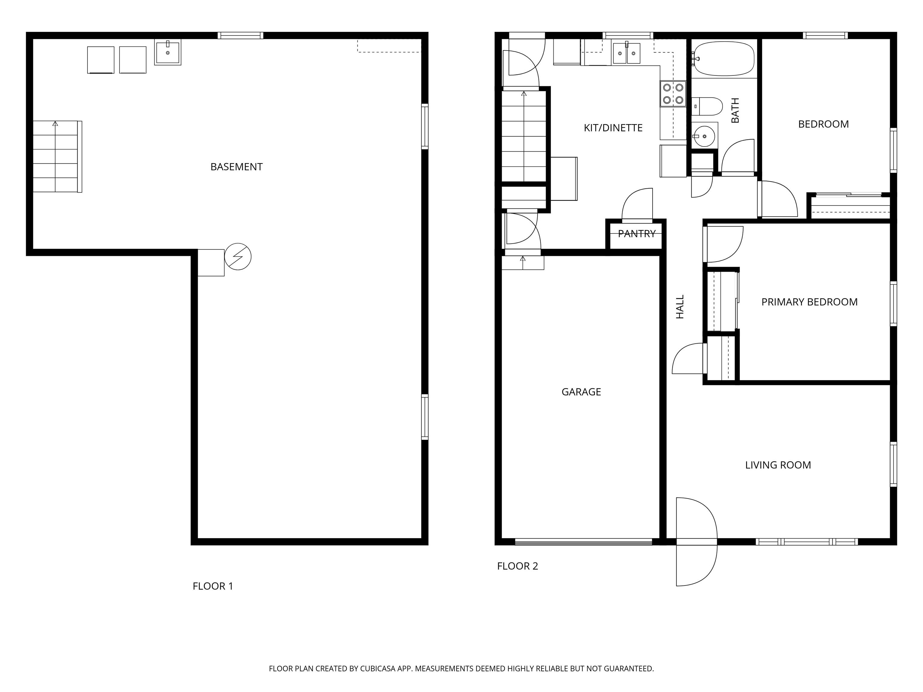
This well-maintained ranch-style duplex offers comfortable main-level living with 2 bedrooms and 1 full bath per side. Each unit includes a full basement, providing plenty of storage or potential for additional living space. Situated on a spacious lot, there’s room to relax, garden, or entertain outdoors. The side-by-side layout gives each tenant privacy with separate entrances, 1 car attached garage and utilities—ideal for owner-occupants or investors alike. A solid, low-maintenance property in a convenient location!

Property Details

General

Total Units: 2

Square Feet: 1,752

Tax Amount: $4,511

New Construction?: No

Style: 1 Story,2 side by side

Property Type: Duplex

County: Winnebago

Zoning: 2 Family/duplex

Interior

Total Square Feet: 1,752

Sq. Ft. Above Grade: 1,752

Water Source: Public

Waste: Public Sewer

Heating/Cooling: Forced Air

Heating Fuel: Natural Gas

# Garbage Disposals: 0

# Dishwashers: 0

# AC Units: 0

# Furnaces: 2

# Ranges: 2

# Refrigerators: 2

# Water Heaters: 2

Unit #1

Level #: Main

# Bedrooms: 2

# Full Baths: 1

# Half Baths: 0

Bedroom 1 Size: 11x11

Bedroom 2 Size: 10x9

Kitchen Size: 13x10

Living Room Size: 17x12

Garage Spaces: 1 Car Gara

Total Sq. Feet: 876

Monthly Rent: Rent

Monthly Rent Amount: 800

Electricity Paid By: Tenant

Water Paid By: Tenant

Heat Paid By: Tenant

Unit #2

Level #: Main

# Bedrooms: 2

# Full Baths: 1

# Half Baths: 0

Bedroom 1 Size: 11x11

Bedroom 2 Size: 10x9

Kitchen Size: 13x10

Living Room Size: 17x12

Garage Spaces: 1 Car Garage - Attached,2 Spaces

Total Sq. Feet: 876

Monthly Rent: Rent

Monthly Rent Amount: 800

Electricity Paid By: Tenant

Water Paid By: Tenant

Heat Paid By: Tenant

Lot / Exterior

# Acres: 0.24

Barrier Free Features: Not Applicable

Schools

School District: Oshkosh Area

Listing Broker

RE/MAX On The Water

Directions & Map

From HWY 41, Head S on HWY 45 (Algoma Blvd), E on Linwood Ave and N on Parkside Dr then continue to address on right


Listed By: RE/MAX On The Water

This listing was last updated by RE/MAX On The Water on October 26, 2025, 11:34 pm.
Listing has been on the market for 13 days, since October 17, 2025.

This information, provided by seller, listing broker, and other parties, may not have been verified.

Information received from other 3rd parties: All information deemed reliable but not guaranteed and should be independently verified. All properties are subject to prior sale, change, or withdrawal. Neither listing broker nor Paragon Real Estate Group nor RANW MLS shall be responsible for any typographical errors, misinformation, misprints, and shall be held totally harmless.

Copyright 2025 RANW MLS. All rights reserved. RANW MLS records were last updated on 10/30/2025 10:15 am.

REQUEST ADDITIONAL INFORMATION

I'd like to schedule a showing.

MORTGAGE CALCULATOR

*Note the monthly payment estimate does not include property taxes or insurance.