Menu
<< Back to Search

405 E PINE New London, WI 54961

$205,000
2 Units  |  1,778 Square Feet  |  Duplex   |   MLS # 50320484

Description

Whether your interest is owner-occupancy or adding a solid investment to your portfolio, this well-updated duplex is ready for its next owner. Step inside both units to find new flooring, updated kitchens and bathrooms, new doors, and numerous additional improvements including a new roof and water heaters. This corner lot provides a rare 3-car detached garage and a fully fenced yard add even more value, making this property an opportunity you won’t want to miss. Seller was told home was built in 1910 when purchased in 2016. City of New London is looking into exact age. Built date will be updated if needed on 2/2/26. Seller's request a close date of 3/31/26, if closing is sooner, Seller's request to occupy 405 E Pine St through 4/5/26. Showings begin 1/31.

Property Details

General

Total Units: 2

Square Feet: 1,778

Tax Amount: $2,582

New Construction?: No

Style: 1.5 Story,2 side by side

Property Type: Duplex

County: Outagamie

Zoning: 2 Family/duplex

Interior

Total Square Feet: 1,778

Sq. Ft. Above Grade: 1,778

Water Source: Public

Waste: Public Sewer

Heating/Cooling: Forced Air

Heating Fuel: Natural Gas

# Garbage Disposals: 0

# Dishwashers: 0

# AC Units: 2

# Furnaces: 2

# Ranges: 2

# Refrigerators: 2

# Water Heaters: 2

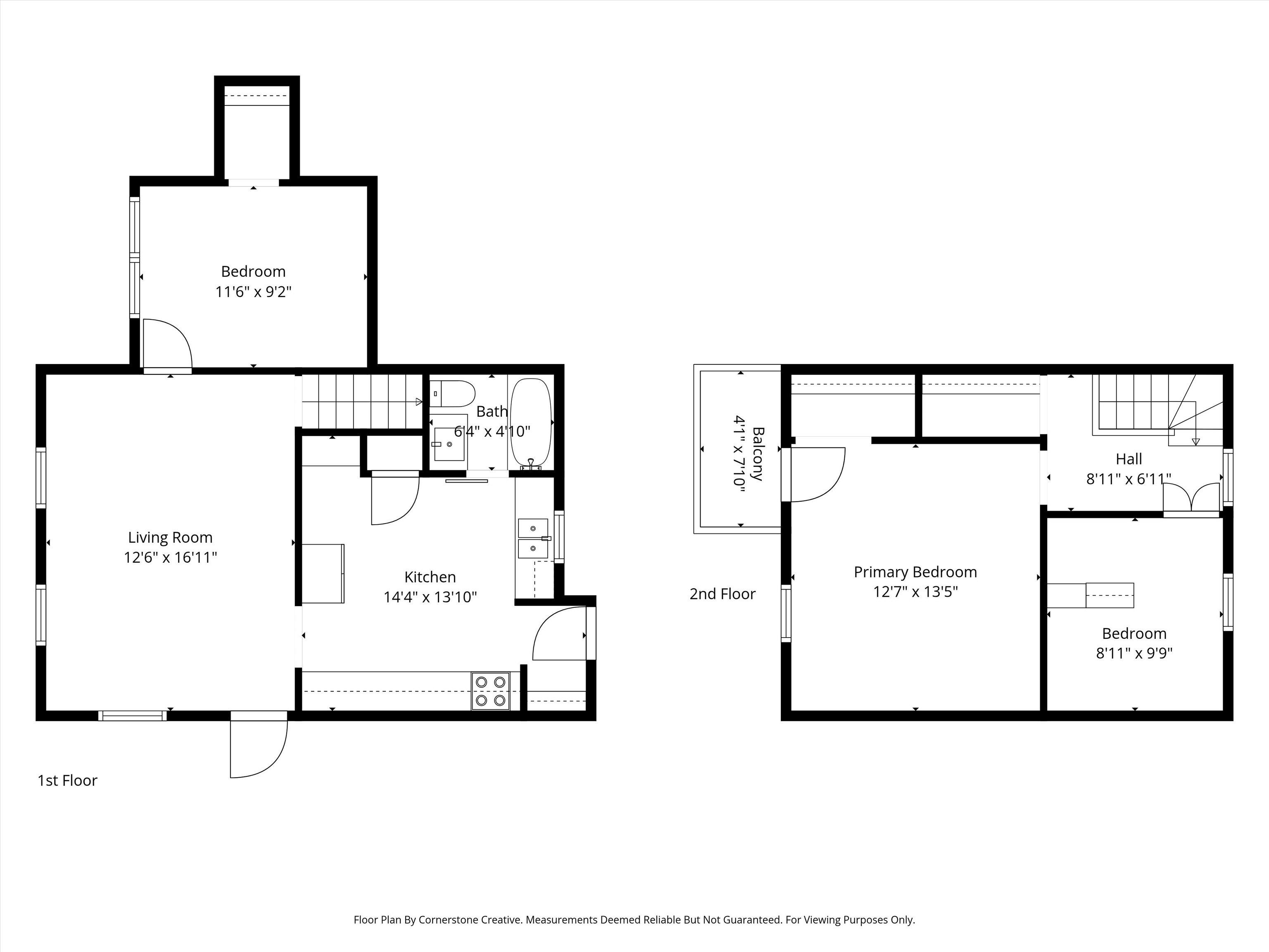
Unit #1

Level #: Main

# Bedrooms: 3

# Full Baths: 1

# Half Baths: 0

Bedroom 1 Size: 11x9

Bedroom 2 Size: 8x9

Bedroom 3 Size: 13x12

Kitchen Size: 14x13

Living Room Size: 16x12

Garage Spaces: 2 Car Gara

Total Sq. Feet: 1,203

Monthly Rent: Owner Oc

Electricity Paid By: Tenant

Water Paid By: Tenant

Heat Paid By: Tenant

Unit #2

Level #: Main

# Bedrooms: 2

# Full Baths: 1

# Half Baths: 0

Bedroom 1 Size: 10x9

Bedroom 2 Size: 10x9

Kitchen Size: 11x15

Living Room Size: 12x17

Garage Spaces: 1 Car Garage - Detached,1 Space

Total Sq. Feet: 575

Monthly Rent: Rent

Monthly Rent Amount: 800

Electricity Paid By: Tenant

Water Paid By: Tenant

Heat Paid By: Tenant

Lot / Exterior

Sq. Ft. of Lot: 10,890

# Acres: 0.25

Barrier Free Features:

  • 1st Floor Bedroom
  • 1st Floor Full Bath

Schools

School District: New London

Listing Broker

RE/MAX 24/7 Real Estate, LLC

Directions & Map

Hwy 15 north into New London on Mill St. Left on Pine St to corner of Pine and Algoma


Listed By: RE/MAX 24/7 Real Estate, LLC

This listing was last updated by RE/MAX 24/7 Real Estate, LLC on February 3, 2026, 10:01 am.
Listing has been on the market for 16 days, since January 29, 2026.

This information, provided by seller, listing broker, and other parties, may not have been verified.

Information received from other 3rd parties: All information deemed reliable but not guaranteed and should be independently verified. All properties are subject to prior sale, change, or withdrawal. Neither listing broker nor Paragon Real Estate Group nor RANW MLS shall be responsible for any typographical errors, misinformation, misprints, and shall be held totally harmless.

Copyright 2026 RANW MLS. All rights reserved. RANW MLS records were last updated on 02/14/2026 6:15 pm.

REQUEST ADDITIONAL INFORMATION

I'd like to schedule a showing.

MORTGAGE CALCULATOR

*Note the monthly payment estimate does not include property taxes or insurance.