
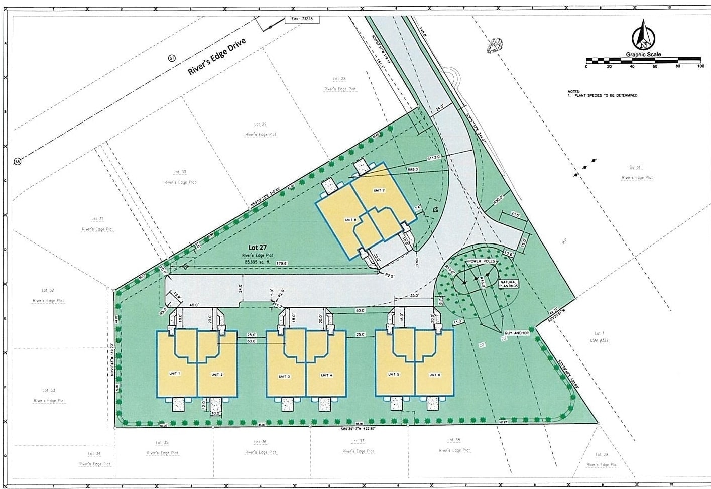
Investor Alert! Land ready to build - eight developed condo pads. Walking distance to Sunset Park & Fox River. Utilities (water, sewer, electric, gas) and road installed. Don't miss out on this opportunity! Addendum 1 to Offer to Purchase MUST be attached to offer.
# Acres: 1.97
Tax Amount: $1,681
Subdivision: Rivers Edge
County: Outagamie
Zoning: Condo
Green Features: Vacant Land/acreage
Improvements:
Lot Number: 27
Lot Description: Level
# Acres: 1.97
Utilities Available to Site:
Waste Available to Site: Public Sewer
Water Available to Site: Public
School District: Kimberly Area
Resource One Realty, LLC
Kimberly Ave, north on Main St, east to Rivers Edge
Listed By: Resource One Realty, LLC
This listing was last updated by Resource One Realty, LLC on October 31, 2025, 4:25 pm.
Listing has been on the market for 108 days, since August 30, 2025.
This information, provided by seller, listing broker, and other parties, may not have been verified.
Information received from other 3rd parties: All information deemed reliable but not guaranteed and should be independently verified. All properties are subject to prior sale, change, or withdrawal. Neither listing broker nor Paragon Real Estate Group nor RANW MLS shall be responsible for any typographical errors, misinformation, misprints, and shall be held totally harmless.
Copyright 2025 RANW MLS. All rights reserved. RANW MLS records were last updated on 12/16/2025 2:15 pm.