Menu
<< Back to Search

2543 TELLURIDE Howard, WI 54313

$299,900
2 Beds  |  2 Baths  |  1,265 Square Feet  |  Condominium   |   MLS # 50317031

Description

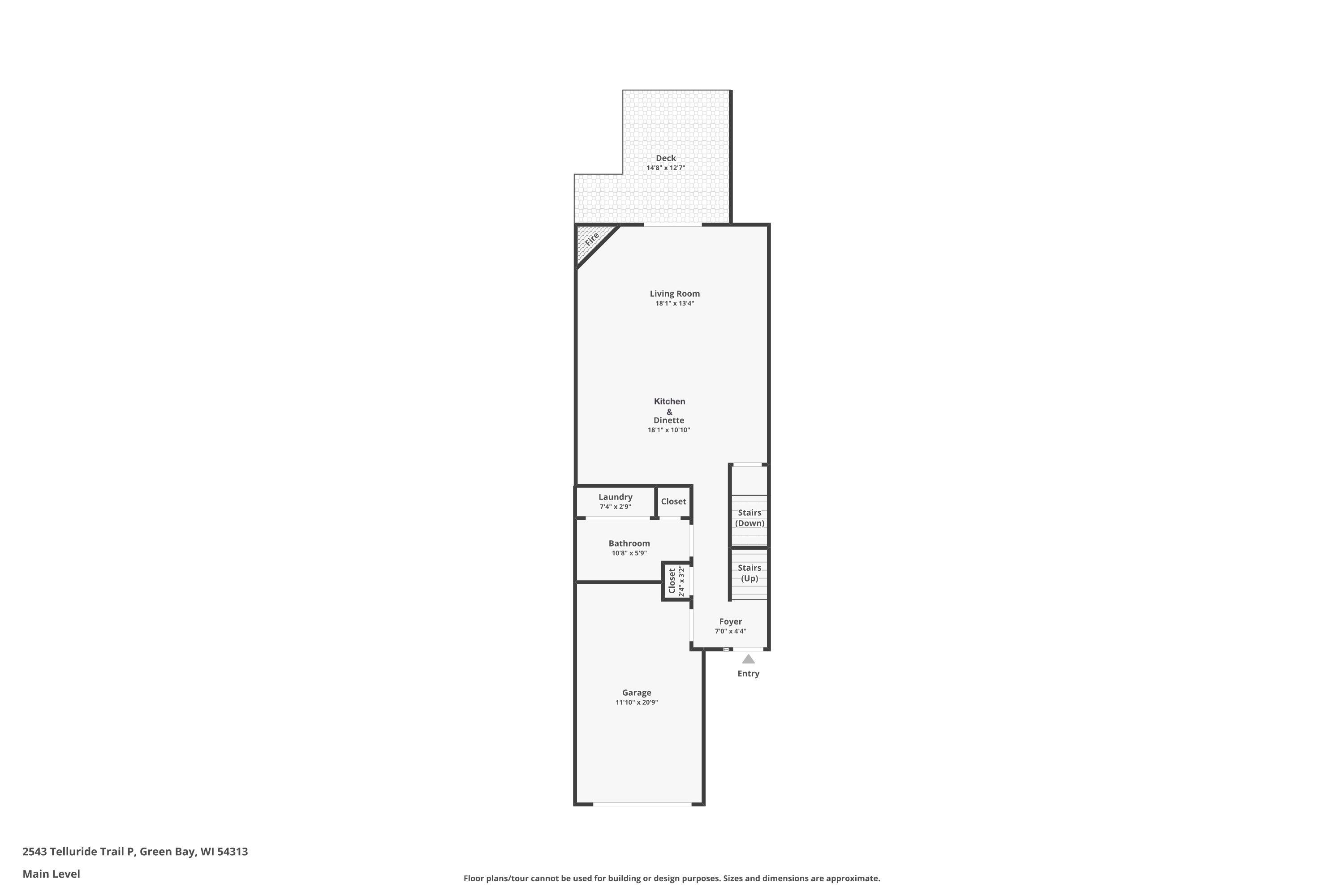
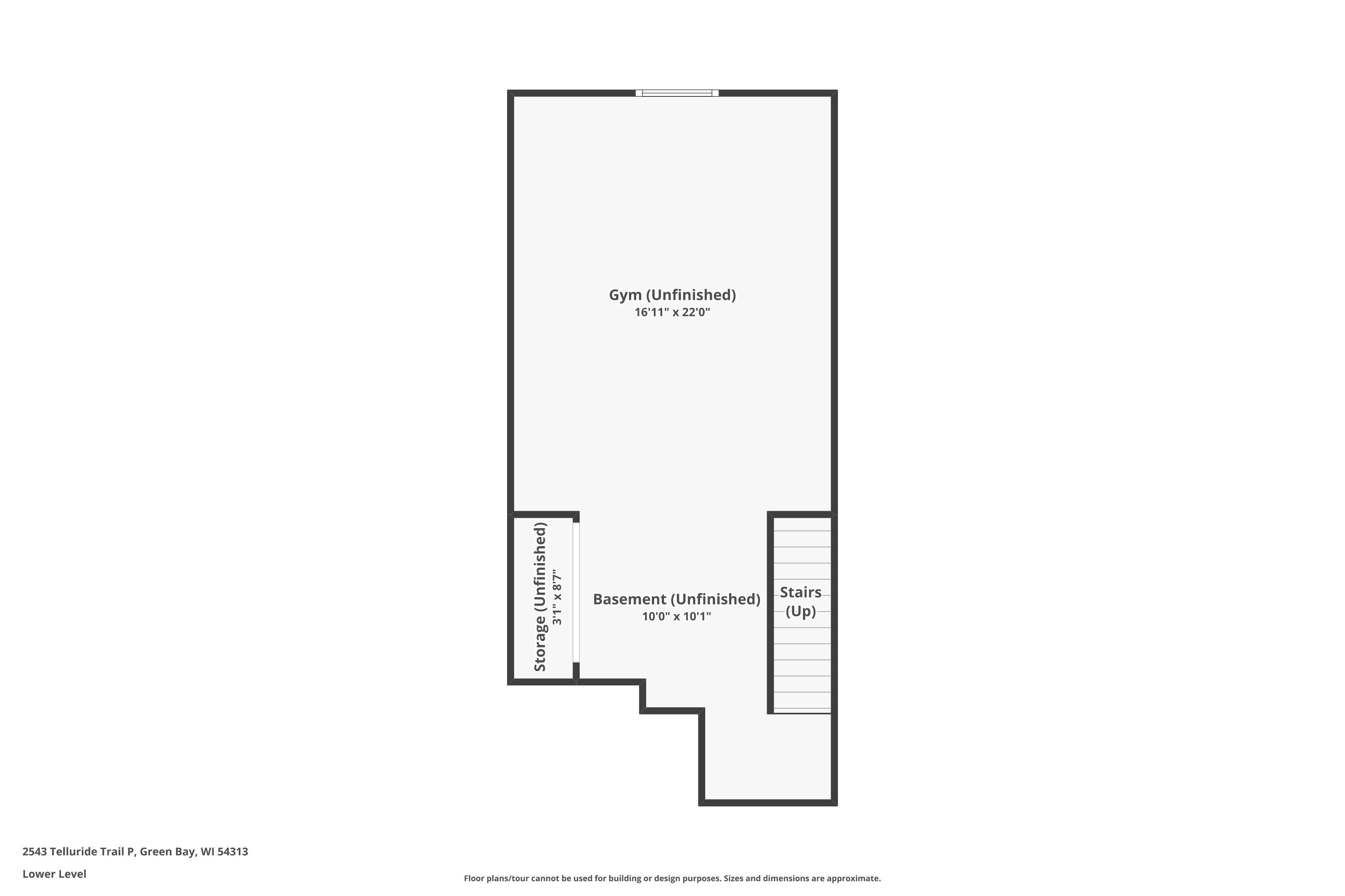
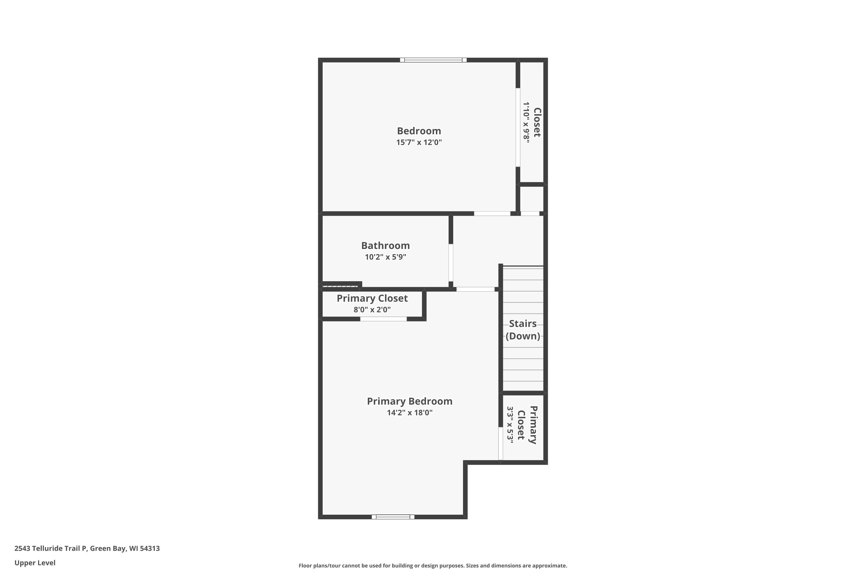
Well maintained 2 bedroom condo located just off the Mountain Bay Trail. The main floor offers a comfortable open concept with a kitchen that includes appliances. Dinette and living room with a corner fireplace opens to deck that steps down to manicured greenspace. The main floor half-bath & laundry combo is complete with included washer and dryer! The upper level features 2 nice size bedrooms and a full bath. Beautiful surroundings & scenery with wooded area behind home w/ abundant wildlife. Close to schools, stores and eateries! The unfinished lower level w/ full-size window offers nice possibilities for extra square footage. Monthly condo dues $135.

Property Details

General

Bedrooms: 2

Bathrooms: 1 full / 1 half

Square Feet: 1,265

Condo Building:

  • 2 Story
  • Side / Side

Living Space:

  • Multi-level
  • Private Entrance
  • Townhouse / 2 Story

Unit Level: 1

Tax Amount: $2,211

Subdivision: Mountain Bay Condos

Property Type: Condominium

County: Brown

Zoning:

  • Condo
  • Residential

Interior

Total Square Feet: 1,265

Sq. Ft. Above Grade: 1,265

Sq. Ft. Below Grade: 0

Fireplaces:

  • One
  • Gas

Appliance Inclusions:

  • Dishwasher
  • Dryer
  • Range
  • Refrigerator
  • Washer

Basement / Lower Level:

  • Full
  • Full Sz Windows Min 20x24
  • Poured Concrete
  • Sump Pump

Misc. Inclusions:

  • At Least 1 Bathtub
  • Breakfast Bar
  • Cable Available
  • Hi-speed Internet Availbl

Water Source: Public

Waste: Public Sewer

Heating/Cooling: Forced Air

Heating Fuel: Natural Gas

Main Level

# Half Baths: 1

Kitchen: 10 x 18

Foyer: 5 x 7

Upper Level

# Full Baths: 1

Bedroom #1: 14 x 16

Bedroom #2: 11 x 15

Lot / Exterior

Barrier Free Features:

  • Laundry 1st Floor
  • Level Drive
  • Ramped Or Level Entrance

Garage Size: 11x20

Garage #1: 1 Car spaces (Attached-nontandem)

Schools

School District: Howard-Suamico

Listing Broker

Dallaire Realty

Directions & Map

Cardinal Ln, to Telluride Trail. Enter thru third driveway, follow marker signs to building 2543.


Listed By: Dallaire Realty

This listing was last updated by Dallaire Realty on October 22, 2025, 10:05 am.
Listing has been on the market for 56 days, since October 21, 2025.

This information, provided by seller, listing broker, and other parties, may not have been verified.

Information received from other 3rd parties: All information deemed reliable but not guaranteed and should be independently verified. All properties are subject to prior sale, change, or withdrawal. Neither listing broker nor Paragon Real Estate Group nor RANW MLS shall be responsible for any typographical errors, misinformation, misprints, and shall be held totally harmless.

Copyright 2025 RANW MLS. All rights reserved. RANW MLS records were last updated on 12/16/2025 2:15 pm.

REQUEST ADDITIONAL INFORMATION

I'd like to schedule a showing.

MORTGAGE CALCULATOR

*Note the monthly payment estimate does not include property taxes or insurance.