Menu
<< Back to Search

1373 LIBERTY Green Bay, WI 54304

$293,000
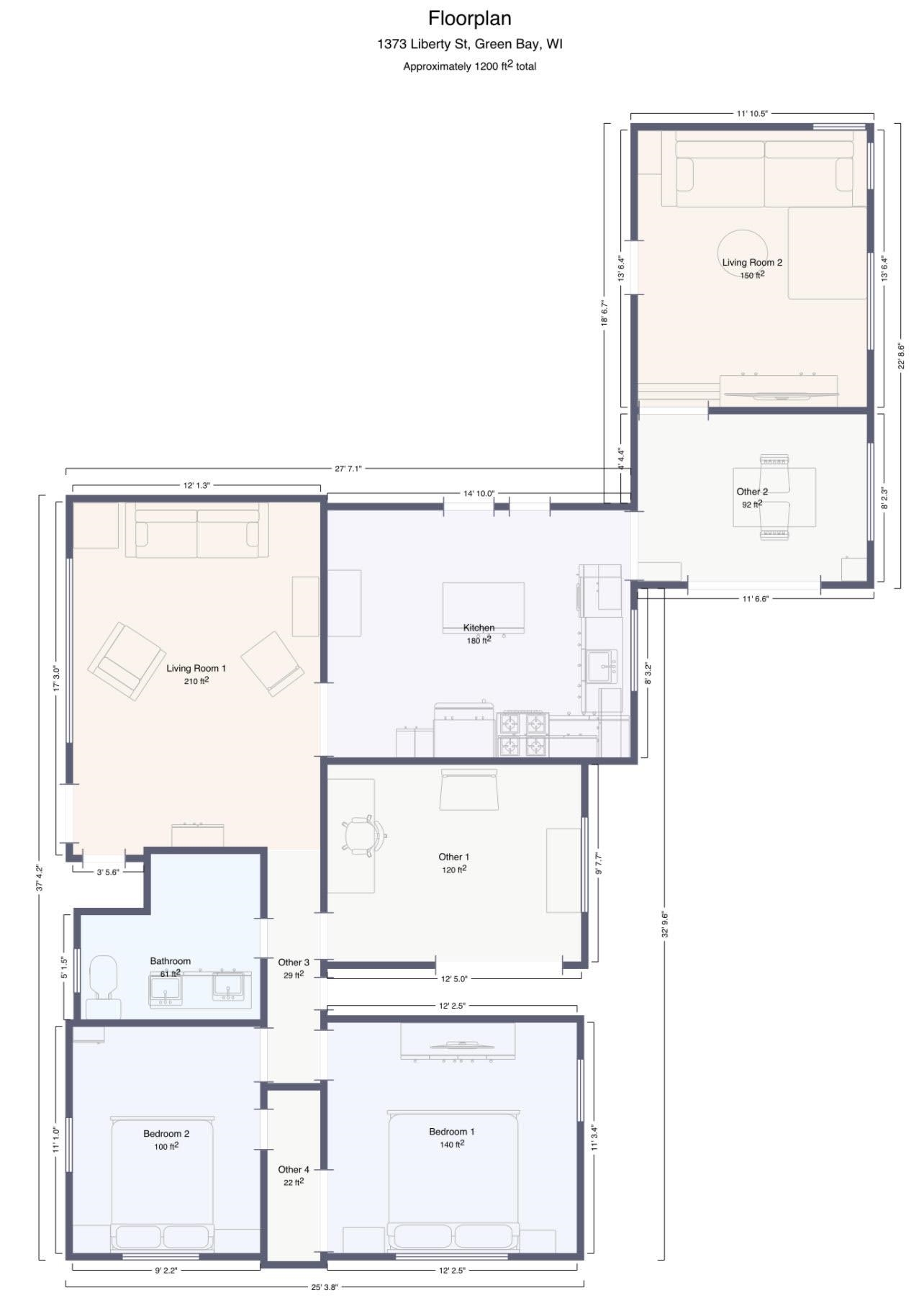
3 Beds  |  1 Baths  |  1,292 Square Feet  |  1 Story   |   MLS # 50318081

Description

Just a short walk from Lambeau Field and the excitement of Titletown, this 3-bedroom, 1-bath ranch home offers a quiet retreat on a peaceful stretch of street. The bright living room welcomes you in, opening to a spacious kitchen providing plenty of room to gather. This leads to a cozy back family room and a sun-filled dining area and/or sunroom. A great addition to this already cute, functional home. It also includes double sinks in the bathroom, vinyl floors throughout for convenience, good size bedrooms, a bonus partially finished half bath in the lower level and lots of extra potential living space. Outside, enjoy a large, fenced yard and patio—perfect for relaxing after game day or enjoying summer evenings.

Property Details

General

Bedrooms: 3

Bathrooms: 1 full / 0 half

Square Feet: 1,292

Tax Amount: $3,950

Architecture: Ranch

Style of Home: 1 Story

Property Type: Single Family Residence

County: Brown

Zoning: Residential

Interior

Total Square Feet: 1,292

Sq. Ft. Above Grade: 1,292

Sq. Ft. Below Grade: 0

Fireplaces:

Appliance Inclusions:

  • Dishwasher
  • Dryer
  • Microwave
  • Range
  • Refrigerator
  • Washer

Basement / Lower Level: Full

Misc. Inclusions:

  • At Least 1 Bathtub
  • Kitchen Island
  • Wood / Simulated Wood Fl
  • Formal Dining

Water Source: Public

Waste: Public Sewer

Heating/Cooling: Forced Air

Heating Fuel: Natural Gas

Main Level

# Full Baths: 1

Family Room: 14 x 12

Kitchen: 15 x 13

Formal Dining Room: 12 x 8

Bedroom #1: 13 x 12

Bedroom #2: 13 x 9

Bedroom #3: 12 x 10

Lot / Exterior

# Acres: 0.18

Foundation: Poured Concrete

Barrier Free Features:

  • 1st Floor Bedroom
  • 1st Floor Full Bath
  • Level Drive
  • Level Lot
  • Low Pile Or No Carpeting

Driveway:

  • Garage # 1-concrete
  • Garage # 2-none

Home Exterior:

  • Brick
  • Vinyl Siding

Garage/Parking/Driveway:

  • Attached
  • Garage Door Opener

Garage #1: 1.5 Car spaces

Schools

School District: Green Bay Area

Listing Broker

Keller Williams Green Bay

Directions & Map

From Lombardi Ave, North on Ridge Road, West on Liberty Street to home.


Listed By: Keller Williams Green Bay

This listing was last updated by Keller Williams Green Bay on November 15, 2025, 10:28 am.
Listing has been on the market for 33 days, since November 12, 2025.

This information, provided by seller, listing broker, and other parties, may not have been verified.

Information received from other 3rd parties: All information deemed reliable but not guaranteed and should be independently verified. All properties are subject to prior sale, change, or withdrawal. Neither listing broker nor Paragon Real Estate Group nor RANW MLS shall be responsible for any typographical errors, misinformation, misprints, and shall be held totally harmless.

Copyright 2025 RANW MLS. All rights reserved. RANW MLS records were last updated on 12/15/2025 4:15 pm.

REQUEST ADDITIONAL INFORMATION

I'd like to schedule a showing.

MORTGAGE CALCULATOR

*Note the monthly payment estimate does not include property taxes or insurance.