Menu
<< Back to Search

1542 PRIMROSE Fond du Lac, WI 54935

$334,900
3 Beds  |  2 Baths  |  1,592 Square Feet  |  1 Story   |   MLS # 50321120

Description

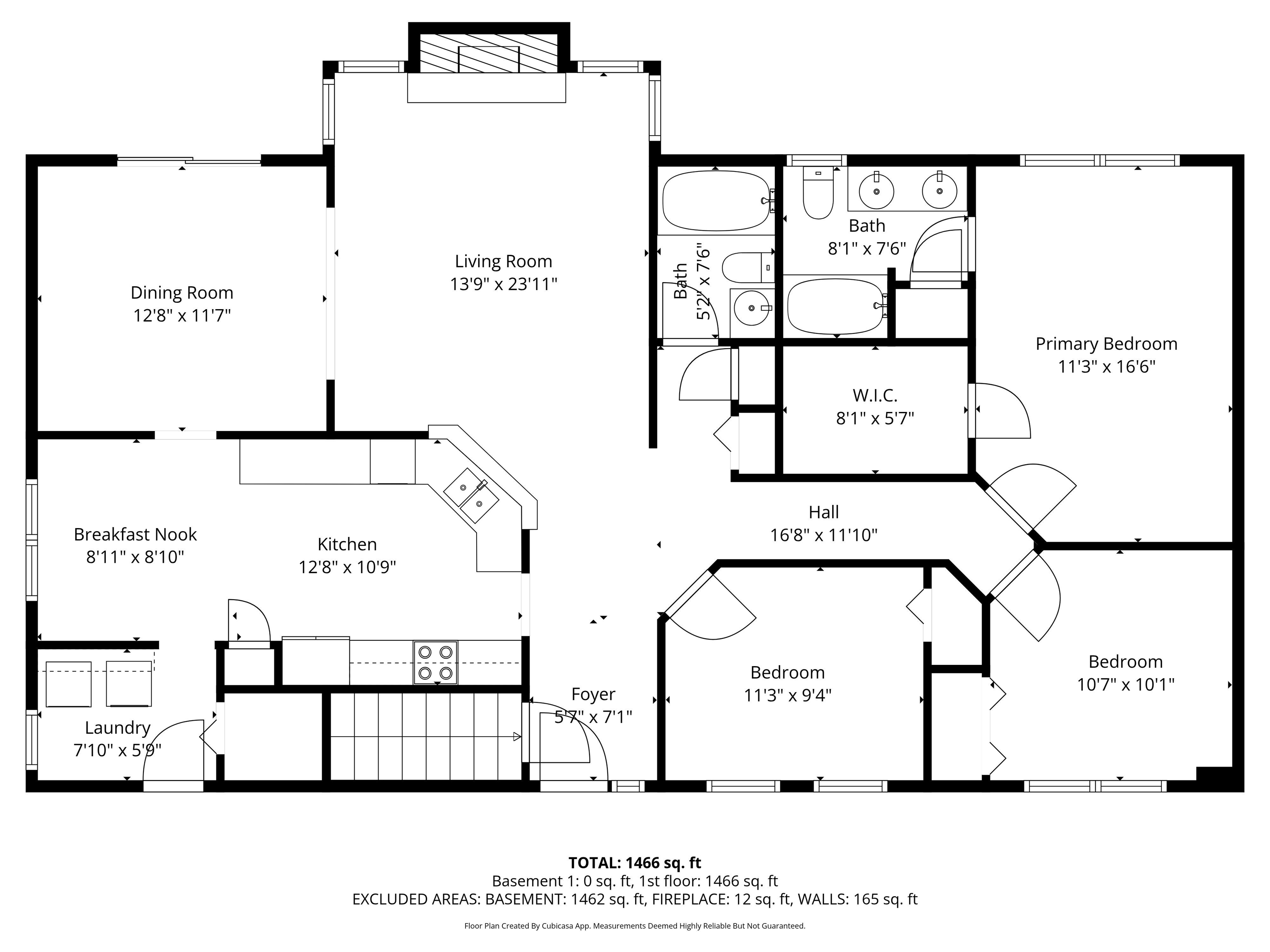
3 bed, 2 bath move-in ready home in Meadowlands Village. This custom home features Merillat hickory kitchen cabinets, Bosch dishwasher, six-panel doors and a custom Chilton Stone wood-burning fireplace. Primary ensuite includes a Whirlpool jetted tub. Main level laundry. The dry basement has a radon mitigation system and garage offers custom-made shelving. Excel engineered and graded lawn has been professionally installed. Property is located minutes from Hwy. 41 and 151. Seller requires 48 hours for binding acceptance. Virtually staged photos.

Property Details

General

Bedrooms: 3

Bathrooms: 2 full / 0 half

Square Feet: 1,592

Tax Amount: $6,029

Subdivision: Meadowlands Village

Style of Home: 1 Story

Property Type: Single Family Residence

County: Fond du Lac

Zoning: Residential

Interior

Total Square Feet: 1,592

Sq. Ft. Above Grade: 1,592

Sq. Ft. Below Grade: 0

Fireplaces:

  • One
  • Wood Burning

Basement / Lower Level:

  • Full
  • Radon Mitigation System
  • Stubbed For Bath
  • Sump Pump

Water Source: Public

Waste: Public Sewer

Heating/Cooling: Forced Air

Heating Fuel: Natural Gas

Main Level

# Full Baths: 2

Kitchen: 11 x 9

Dining Room: 8 x 9

Formal Dining Room: 11 x 13

Bedroom #1: 16 x 11

Bedroom #2: 11 x 11

Bedroom #3: 12 x 9

Laundry: 8 x 6

Lot / Exterior

# Acres: 0.34

Foundation: Poured Concrete

Barrier Free Features:

  • 1st Floor Bedroom
  • 1st Floor Full Bath
  • Laundry 1st Floor

Driveway:

  • Garage # 1-concrete
  • Garage # 2-none

Home Exterior: Vinyl Siding

Garage/Parking/Driveway: Attached

Garage #1: 2 Car spaces

Schools

School District: Fond du Lac

Listing Broker

RE/MAX Heritage

Directions & Map

Fond du Lac Avenue to Rienzi Road. Go east on Rienzi to Mary Lee Drive. Turn Left on Primrose Lane to address.


Listed By: RE/MAX Heritage

This listing was last updated by RE/MAX Heritage on February 14, 2026, 10:23 am.
Listing has been on the market for 1 days, since February 13, 2026.

This information, provided by seller, listing broker, and other parties, may not have been verified.

Information received from other 3rd parties: All information deemed reliable but not guaranteed and should be independently verified. All properties are subject to prior sale, change, or withdrawal. Neither listing broker nor Paragon Real Estate Group nor RANW MLS shall be responsible for any typographical errors, misinformation, misprints, and shall be held totally harmless.

Copyright 2026 RANW MLS. All rights reserved. RANW MLS records were last updated on 02/14/2026 8:15 pm.

REQUEST ADDITIONAL INFORMATION

I'd like to schedule a showing.

MORTGAGE CALCULATOR

*Note the monthly payment estimate does not include property taxes or insurance.