Menu
<< Back to Search

36 S CLINTON Clintonville, WI 54929

$249,900
4 Units  |  2,548 Square Feet  |  Multi Family   |   MLS # 50321281

Description

This turnkey property is in great condition and offers an outstanding opportunity for both seasoned investors and owner-occupants seeking strong rental potential. Each of the 4 units are well-appointed with comfortable living spaces, functional layouts, and abundant natural light. The property has been thoughtfully cared for, reflecting pride of ownership throughout. Situated on a charming street, the building combines classic character with solid updates, making it an attractive, low-maintenance investment. This property is positioned for continued appreciation and consistent cash flow.

Property Details

General

Total Units: 4

Square Feet: 2,548

Tax Amount: $3,273

New Construction?: No

Style: 2 Story,Apartment Building

Property Type: Multi Family

County: Waupaca

Zoning: Multi-family(4units)

Interior

Total Square Feet: 2,548

Sq. Ft. Above Grade: 2,548

Water Source: Public

Waste: Public Sewer

Heating/Cooling: Forced Air

Heating Fuel: Natural Gas

# Garbage Disposals: 0

# Dishwashers: 0

# AC Units: 0

# Furnaces: 1

# Ranges: 4

# Refrigerators: 4

# Water Heaters: 1

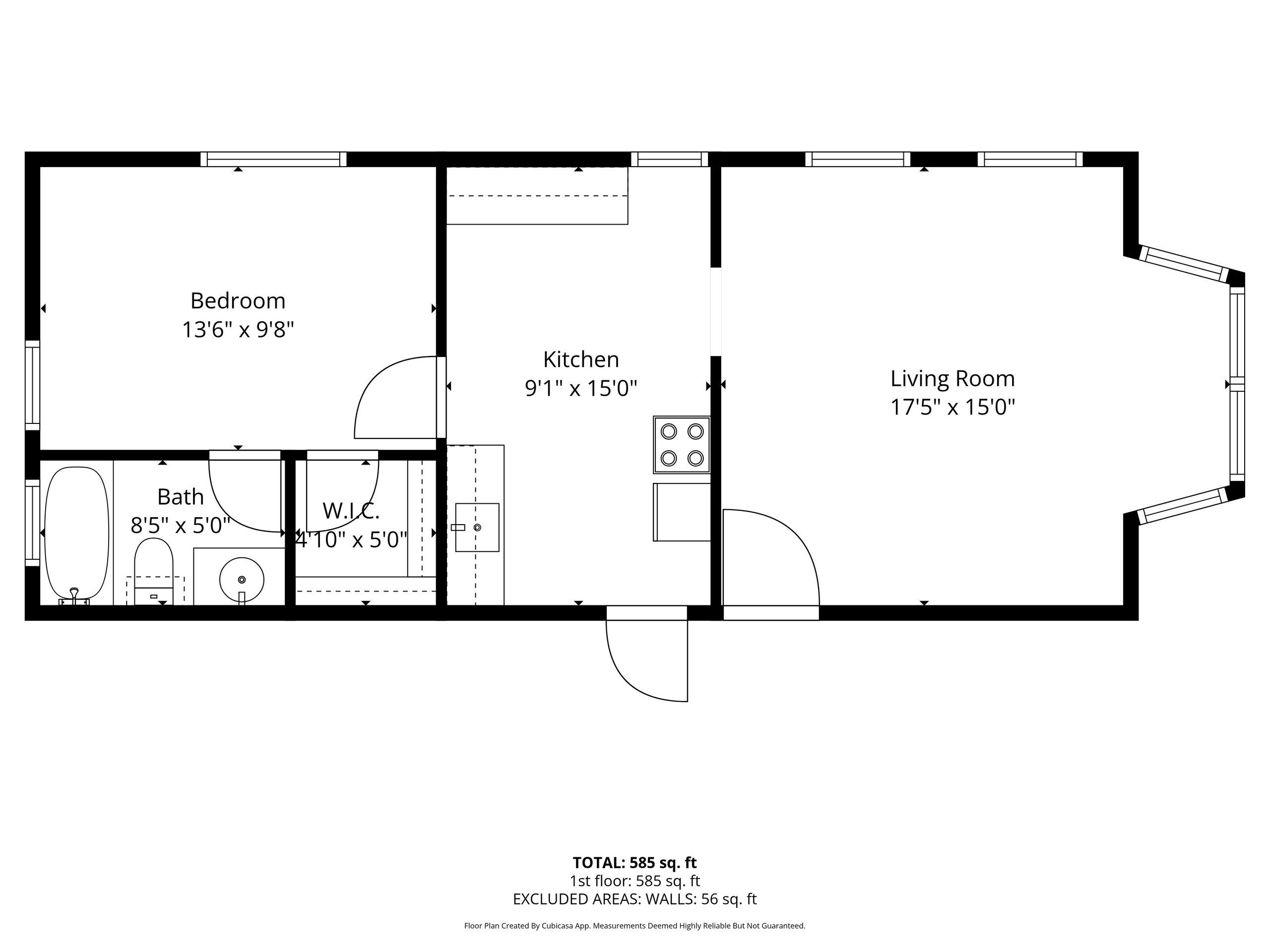
Unit #1

Level #: Main

# Bedrooms: 1

# Full Baths: 1

# Half Baths: 0

Bedroom 1 Size: 13x08

Kitchen Size: 15x09

Living Room Size: 17x15

Garage Spaces: 1 Space

Total Sq. Feet: 566

Monthly Rent: Rent

Monthly Rent Amount: 645

Electricity Paid By: Tenant

Water Paid By: Landlord

Heat Paid By: Landlord

Unit #2

Level #: Main

# Bedrooms: 1

# Full Baths: 1

# Half Baths: 0

Bedroom 1 Size: 11x10

Kitchen Size: 15x09

Living Room Size: 13x08

Other Room Size: 08x07

Garage Spaces: 1 Space

Total Sq. Feet: 512

Monthly Rent: Rent

Monthly Rent Amount: 745

Electricity Paid By: Tenant

Water Paid By: Landlord

Heat Paid By: Landlord

Unit #3

Level #: Upper

# Bedrooms: 1

# Full Baths: 1

# Half Baths: 0

Bedroom 1 Size: 13x09

Kitchen Size: 15x09

Living Room Size: 15x13

Garage Spaces: 1 Space

Total Sq. Feet: 566

Monthly Rent: Rent

Monthly Rent Amount: 695

Electricity Paid By: Tenant

Water Paid By: Landlord

Heat Paid By: Landlord

Unit #4

Level #: Upper

# Bedrooms: 1

# Full Baths: 1

# Half Baths: 0

Bedroom 1 Size: 10x08

Kitchen Size: 09x08

Living Room Size: 09x08

Garage Spaces: 1 Space

Total Sq. Feet: 300

Monthly Rent: Rent

Monthly Rent Amount: 550

Electricity Paid By: Tenant

Water Paid By: Landlord

Heat Paid By: Landlord

Lot / Exterior

# Acres: 0.16

Barrier Free Features:

  • 1st Floor Bedroom
  • 1st Floor Full Bath

Schools

School District: Clintonville

Listing Broker

August and Main Realty

Directions & Map

Main ST TO 10TH West ON 10TH 2 Blocks to Corner of 10th and Clinton Ave


Listed By: August and Main Realty

This listing was last updated by August and Main Realty on February 27, 2026, 5:03 pm.
Listing has been on the market for 40 days, since February 18, 2026.

This information, provided by seller, listing broker, and other parties, may not have been verified.

Information received from other 3rd parties: All information deemed reliable but not guaranteed and should be independently verified. All properties are subject to prior sale, change, or withdrawal. Neither listing broker nor Paragon Real Estate Group nor RANW MLS shall be responsible for any typographical errors, misinformation, misprints, and shall be held totally harmless.

Copyright 2026 RANW MLS. All rights reserved. RANW MLS records were last updated on 03/29/2026 10:15 pm.

REQUEST ADDITIONAL INFORMATION

I'd like to schedule a showing.

MORTGAGE CALCULATOR

*Note the monthly payment estimate does not include property taxes or insurance.