Menu
<< Back to Search

2808 AQUARIUS Bellevue, WI 54311

$409,900
2 Units  |  2,552 Square Feet  |  Duplex   |   MLS # 50319090

Description

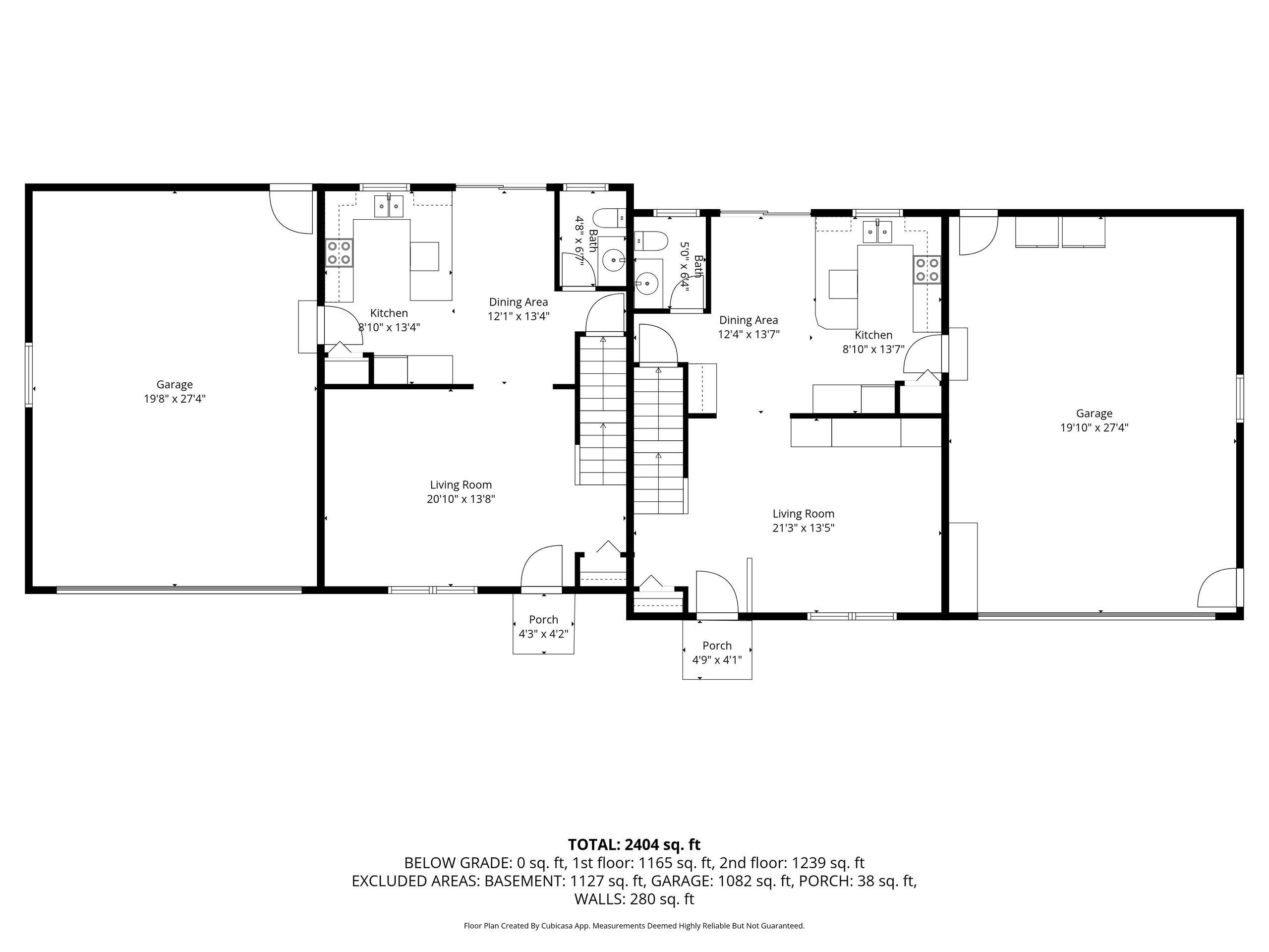
Don't miss this wonderful investment opportunity. Great for owner occupant or investment. Hard-to-find, spacious side-by-side duplex with great rental history. Each unit features 3 bedrooms, 1.5 baths, a great floor plan and a two-stall garage. 2810 Aquarius updates include counter tops, patio door, upstairs windows, kitchen window and carpet. Unit 2808 is long term tenant and lease is month to month. Per seller, roof is approximately 10 years old. Only showing 2810 Aquarius.

Property Details

General

Total Units: 2

Square Feet: 2,552

Tax Amount: $3,736

New Construction?: No

Style: 2 side by side,2 Story

Property Type: Duplex

County: Brown

Zoning: Residential

Interior

Total Square Feet: 2,552

Sq. Ft. Above Grade: 2,552

Water Source: Public

Waste: Public Sewer

Heating/Cooling: Forced Air

Heating Fuel: Natural Gas

# Garbage Disposals: 0

# Dishwashers: 2

# AC Units: 2

# Furnaces: 2

# Ranges: 1

# Refrigerators: 1

# Water Heaters: 2

Unit #1

Level #: Main

# Bedrooms: 3

# Full Baths: 1

# Half Baths: 1

Bedroom 1 Size: 16X11

Bedroom 2 Size: 10X10

Bedroom 3 Size: 10X9

Dining Room Size: 13X7

Kitchen Size: 11x10

Living Room Size: 19X13

Garage Spaces: 2 Car Gara

Total Sq. Feet: 1,276

Monthly Rent: Rent

Monthly Rent Amount: 1,050

Electricity Paid By: Tenant

Water Paid By: Tenant

Heat Paid By: Tenant

Unit #2

Level #: Main

# Bedrooms: 3

# Full Baths: 1

# Half Baths: 1

Bedroom 1 Size: 13X10

Bedroom 2 Size: 13X10

Bedroom 3 Size: 9X9

Dining Room Size: 13X8

Kitchen Size: 11X8

Living Room Size: 17X13

Garage Spaces: 2 Car Garage - Attached

Total Sq. Feet: 1,276

Monthly Rent: Vacant

Electricity Paid By: Tenant

Water Paid By: Tenant

Heat Paid By: Tenant

Lot / Exterior

# Acres: 0.34

Barrier Free Features: Not Applicable

Schools

School District: Green Bay Area

Listing Broker

Keller Williams Green Bay

Directions & Map

From Hwy 43 & Manitowoc Rd. Head Southeast on Manitowoc Rd. Turn South on Capricorn Dr and then West on Aquarius Rd.


Listed By: Keller Williams Green Bay

This listing was last updated by Keller Williams Green Bay on December 13, 2025, 2:41 am.
Listing has been on the market for 5 days, since December 11, 2025.

This information, provided by seller, listing broker, and other parties, may not have been verified.

Information received from other 3rd parties: All information deemed reliable but not guaranteed and should be independently verified. All properties are subject to prior sale, change, or withdrawal. Neither listing broker nor Paragon Real Estate Group nor RANW MLS shall be responsible for any typographical errors, misinformation, misprints, and shall be held totally harmless.

Copyright 2025 RANW MLS. All rights reserved. RANW MLS records were last updated on 12/16/2025 2:15 pm.

REQUEST ADDITIONAL INFORMATION

I'd like to schedule a showing.

MORTGAGE CALCULATOR

*Note the monthly payment estimate does not include property taxes or insurance.