Menu
<< Back to Search

2919 S MOON BEAM Appleton, WI 54915

$279,900
3 Beds  |  2 Baths  |  1,232 Square Feet  |  1 Story   |   MLS # 50317775

Description

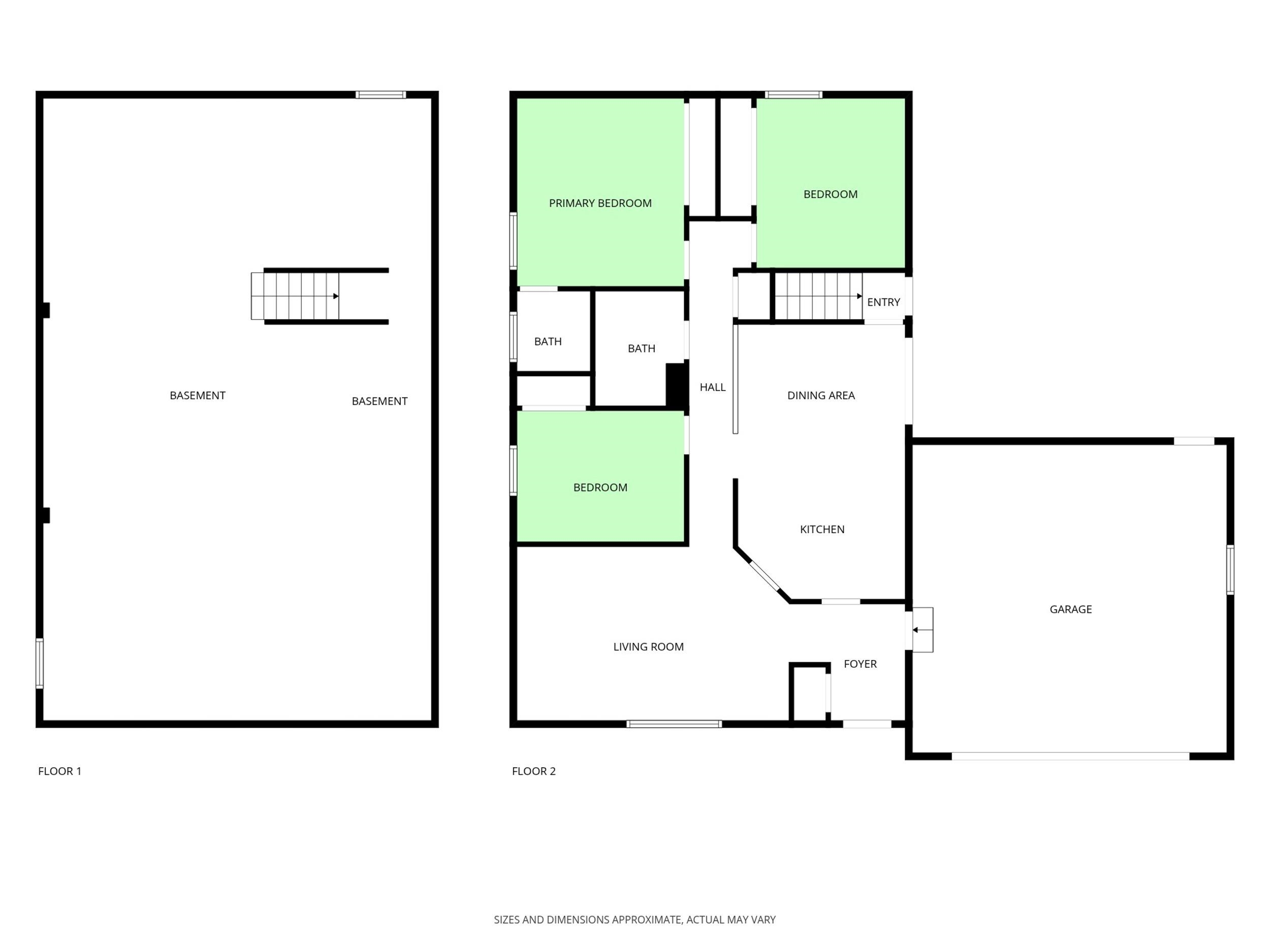
Rare Over a Half Acre Cul-de-Sac Setting! Welcome home to this inviting 3-bedroom, 1.5-bath ranch tucked at the end of a cul-de-sac on an oversized, park-like lot with over half an acre and fully fenced yard for privacy and play. Inside, you’ll love the open-concept design featuring vaulted ceilings in the living room and a seamless flow for everyday living and entertaining. The kitchen includes a full appliance package, and the primary bedroom offers its own attached half bath for added convenience. The lower level is clean, open, and ready for future finishing, a fantastic opportunity to create additional living space to suit your needs. A rare blend of city convenience and spacious outdoor living — don’t miss your chance to make this special property your own!

Property Details

General

Bedrooms: 3

Bathrooms: 1 full / 1 half

Square Feet: 1,232

Tax Amount: $3,975

Architecture: Ranch

Style of Home: 1 Story

Property Type: Single Family Residence

County: Calumet

Zoning: Residential

Interior

Total Square Feet: 1,232

Sq. Ft. Above Grade: 1,232

Sq. Ft. Below Grade: 0

Fireplaces:

Appliance Inclusions:

  • Dishwasher
  • Dryer
  • Microwave
  • Range
  • Washer

Basement / Lower Level: Full

Misc. Inclusions:

  • At Least 1 Bathtub
  • Breakfast Bar
  • Cable Available
  • Hi-speed Internet Availbl
  • Vaulted Ceiling(s)

Water Source: Public

Waste: Public Sewer

Heating/Cooling: Forced Air

Heating Fuel: Natural Gas

Main Level

# Full Baths: 1

# Half Baths: 1

Kitchen: 11 x 10

Dining Room: 11 x 8

Bedroom #1: 13 x 11

Bedroom #2: 11 x 10

Bedroom #3: 11 x 9

Lot / Exterior

Lot Description: Cul-de-sac

# Acres: 0.68

Foundation: Poured Concrete

Barrier Free Features:

  • 1st Floor Bedroom
  • 1st Floor Full Bath

Driveway:

  • Garage # 1-concrete
  • Garage # 2-none

Home Exterior:

  • Brick
  • Vinyl Siding

Garage/Parking/Driveway:

  • Attached
  • Garage Door Opener

Garage #1: 2 Car spaces

Schools

School District: Appleton Area

Listing Broker

Century 21 Ace Realty

Directions & Map

Midway N. on Telulah E. on Moon Beam Trail, S. on Moon Beam Ct.


Listed By: Century 21 Ace Realty

This listing was last updated by Century 21 Ace Realty on November 8, 2025, 8:56 pm.
Listing has been on the market for 40 days, since November 5, 2025.

This information, provided by seller, listing broker, and other parties, may not have been verified.

Information received from other 3rd parties: All information deemed reliable but not guaranteed and should be independently verified. All properties are subject to prior sale, change, or withdrawal. Neither listing broker nor Paragon Real Estate Group nor RANW MLS shall be responsible for any typographical errors, misinformation, misprints, and shall be held totally harmless.

Copyright 2025 RANW MLS. All rights reserved. RANW MLS records were last updated on 12/15/2025 4:15 pm.

REQUEST ADDITIONAL INFORMATION

I'd like to schedule a showing.

MORTGAGE CALCULATOR

*Note the monthly payment estimate does not include property taxes or insurance.