Menu
<< Back to Search

804 W LINDBERGH Appleton, WI 54914

$350,000
2 Units  |  1,922 Square Feet  |  Duplex   |   MLS # 50319051

Description

Exceptional opportunity in Appleton! Discover this full brick, side-by-side ranch duplex offering timeless curb appeal and rock-solid construction. Perfect for an owner-occupant seeking supplementary income or an investor desiring a low-maintenance, easy-to-rent property. With fully separated utilities, garages, and basements, management is simplified. Seller requests a review period of up to 48 hours following submission of the offer.

Property Details

General

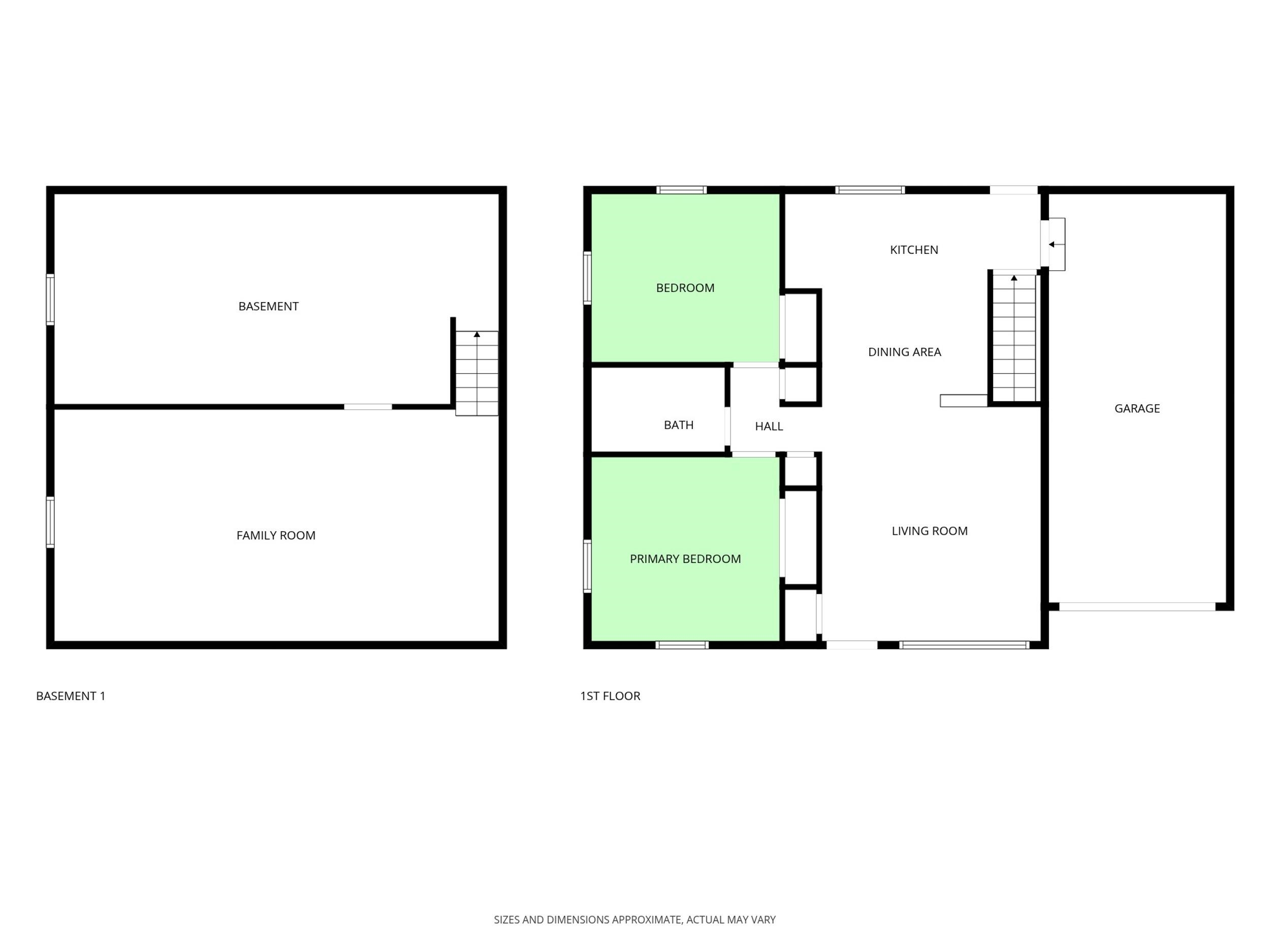
Total Units: 2

Square Feet: 1,922

Lot Size: 60x120

Tax Amount: $3,613

New Construction?: No

Style: 1 Story,2 side by side

Property Type: Duplex

County: Outagamie

Zoning: 2 Family/duplex

Interior

Total Square Feet: 1,922

Sq. Ft. Above Grade: 1,922

Water Source: Public

Waste: Public Sewer

Heating/Cooling:

  • Forced Air
  • Hot Water

Heating Fuel: Natural Gas

# Garbage Disposals: 0

# Dishwashers: 0

# AC Units: 0

# Furnaces: 2

# Ranges: 2

# Refrigerators: 2

# Water Heaters: 2

Unit #1

Level #: Main

# Bedrooms: 2

# Full Baths: 1

# Half Baths: 0

Bedroom 1 Size: 12x12

Bedroom 2 Size: 11x12

Kitchen Size: 12x12

Living Room Size: 14x15

Garage Spaces: 1 Car Gara

Total Sq. Feet: 962

Monthly Rent: Rent

Monthly Rent Amount: 1,100

Electricity Paid By: Tenant

Water Paid By: Tenant

Heat Paid By: Tenant

Unit #2

Level #: Main

# Bedrooms: 2

# Full Baths: 1

# Half Baths: 0

Bedroom 1 Size: 12x12

Bedroom 2 Size: 12x11

Kitchen Size: 12x12

Living Room Size: 14x15

Garage Spaces: 1 Car Garage - Attached

Total Sq. Feet: 960

Monthly Rent: Owner Oc

Electricity Paid By: Landlord

Water Paid By: Landlord

Heat Paid By: Landlord

Lot / Exterior

Lot Description:

  • Near Bus Line
  • Sidewalk

Sq. Ft. of Lot: 7,200

# Acres: 0.17

Barrier Free Features:

  • 1st Floor Bedroom
  • 1st Floor Full Bath
  • Level Drive
  • Level Lot
  • Low Pile Carpeting

Schools

School District: Appleton Area

Listing Broker

Century 21 Ace Realty

Directions & Map

College Ave to North on Richmond St head West on Lindbergh


Listed By: Century 21 Ace Realty

This listing was last updated by Century 21 Ace Realty on December 11, 2025, 2:07 pm.
Listing has been on the market for 7 days, since December 9, 2025.

This information, provided by seller, listing broker, and other parties, may not have been verified.

Information received from other 3rd parties: All information deemed reliable but not guaranteed and should be independently verified. All properties are subject to prior sale, change, or withdrawal. Neither listing broker nor Paragon Real Estate Group nor RANW MLS shall be responsible for any typographical errors, misinformation, misprints, and shall be held totally harmless.

Copyright 2025 RANW MLS. All rights reserved. RANW MLS records were last updated on 12/16/2025 2:15 pm.

REQUEST ADDITIONAL INFORMATION

I'd like to schedule a showing.

MORTGAGE CALCULATOR

*Note the monthly payment estimate does not include property taxes or insurance.